Vonyarcvashegy - Eladó Ház
184 m2
114.900.000 Ft
344929
Két lakásos 95 nm-es, prémium minőségben teljeskörűen felújított családi ház, nyaraló Vonyarcvashegyen!
Leírás
Okosotthon és Dupla Komfort!
Eladásra kínálom ezt a minden részletében megújult, két generáció számára is ideális családi házat, amely Vonyarcvashegy egyik legkedveltebb, csendes és átmenő forgalomtól mentes zsákutcájában található.
Itt a privát szféra és a modern technológia találkozik a Balaton közelségével.
Ingatlan Főbb Jellemzői:
Gondozott, sík telek 707 nm
Rendezett kert, amely tökéletes színtere a családi összejöveteleknek.
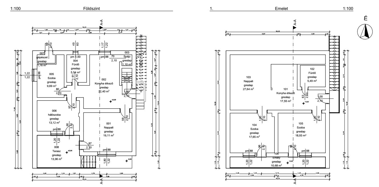
Tágas élettér 184 nm. Két teljesen szeparált szint, amely ideális nagycsaládosoknak vagy befektetőknek (kiadásra).
2021-2023 közötti teljes műszaki újjászületés: Az ingatlanban minden vezeték, burkolat és gépészeti elem megújult.
Csúcstechnológia a mindennapokban:
Okos fűtésrendszer: Kondenzációs gázkazán, okostelefonról helyiségenként vezérelhető radiátorokkal.Friss levegő kompromisszumok nélkül: A földszinten kiépített hővisszanyerős szellőzőrendszer biztosítja az optimális klímát és az alacsony rezsit.
Prémium kényelem: Központi vízlágyító, 3 fázisú villanyhálózat (3x25A + éjszakai áram) és távvezérelhető, 5 kW-os klímarendszer.
Kiváló szigetelés: 15 cm-es ásványgyapot a tetőben és extra hőszigetelő üvegezésű tetőablakok a maximális energiahatékonyságért.
Tökéletes Elosztás:
Földszint: Konyha-étkező, otthonos nappali, 2 hálószoba és fürdő-wc.
Emelet: Tágas konyha-étkező-nappali, 2 külön nyíló hálószoba és fürdő-wc.
Lokáció és Életérzés:Az ingatlan egy idilli, családias környezetben fekszik, ahonnan a méltán híres vonyarci strand mindössze 20 perces kényelmes sétával elérhető. Ez a ház nem igényel további ráfordítást – csak a kulcsokat kell átvennie!
Amennyiben felkeltette érdeklődését ez a remek ingatlan,kérem keressen bizalommal.
Előre egyeztetett időpontban örömmel megmutatom.
Béres Enikő
BJ Ingatlan
Kapcsolati adatok
Érdeklődjön az ingatlanról, e-mailben!
Hasonló ingatlanok
Vonyarcvashegy
160 fokos ÖRÖKPANORÁMA A BALATONRA! 2 ingatlan egyben!
Vonyarcvashegy
Vonyarcvashegy csendes zsákutcájában családi ház eladó
Vonyarcvashegy
Vonyarcvashegyen Balatoni panorámával rendelkező, PRÉMIUM kategó...