Cserszegtomaj - Eladó Ház
100 m2
129.000.000 Ft
348013
Új építésű, 3 hálószobás családi ház Cserszegtomajon
Leírás
A Balaton szomszédságában, Cserszegtomaj kedvelt településén, egy csendes zsákutcában ajánlom figyelmébe ezt az új építésű családi házat.
A község központjától mindössze pár száz méterre található az ingatlan, környezete mégis csendes, nyugodt.
Az ingatlanról bővebben:
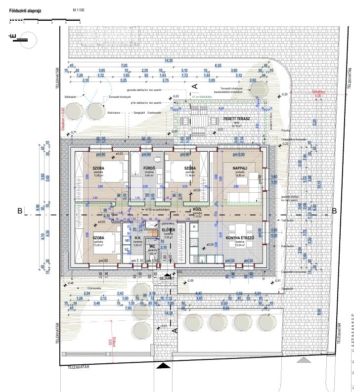
- Telke 1319 nm
- A családi ház haszon lakótere 100 nm, melyhez 22 nm területű fedett terasz tartozik
- 30-as tégla falazattal épül, 15 cm homlokzati szigeteléssel
- Teljes közművel rendelkezik az ingatlan
- 3 rétegű üveggel ellátott, műanyag nyílászárók kerülnek beépítésre, alumínium redőnnyel és szúnyoghálóval
- Fűtésrendszerről még folynak az egyeztetések, 2 opció lehetséges (kondenzációs gázkazán, vagy levegő-levegő hőszivattyú)
- Belső burkolatok, és szaniterek meghatározott keretösszegen belül, ízlés szerint szabadon választhatók
Az ingatlan kulcsrakész állapotban kerül átadásra, várhatóan 2026 őszén.
Helyiségek: előtér, közlekedő, 2 fürdőszoba, 3 hálószoba, háztartási helyiség, konyha-étkező-nappali
Egyszerű, és nagyszerű! Praktikus, élhető terek, minőségi kivitelezés!
Amennyiben megfizethető áron szeretne új építésű családi házat vásárolni, ne hagyja ki ezt a remek lehetőséget!
További információért, vagy személyes megtekintéssel kapcsolatban forduljon hozzám bizalommal!
Fekete Bence
BJ Ingatlan
Kapcsolati adatok
Érdeklődjön az ingatlanról, e-mailben!
Hasonló ingatlanok
Cserszegtomaj
Csereszegtomajon kisebb telken makulátlan családi ház Eladó!
Cserszegtomaj
Eladó igényes, azonnal költözhető családi ház Cserszegtomajon