Irodánk minden hétköznap 9-12, 13-15 óráig nyitvatart

Keszthely - Eladó Ház

Alapterület
124 m2
Ár
99.000.000 Ft
Hirdetés azonosító
347044

Új építésű ikerházak Keszthely-Kertvárosban

Leírás

Keszthely és Cserszegtomaj határában, egy új építésű projekt keretein belül, a Panoráma Lakóparkban, összesen 6 lakóegység épül, 3 különálló ikerház formájában.

A hirdetésben szereplő ikerházfél alapterülete 124 nm, garázzsal és terasszal együtt.
Minden épületrészhez 400 nm saját, kerített kert tartozik.
A lakrészek között kaptak helyet a garázsok, így kellően intim minden élettér.

Az ingatlanról bővebben:

73,89 nm hasznos lakótér, plusz 29,52 nm terasz, és 20,68 nm garázs
30-as Porotherm N+F tégla falazat
Tető héjazata betoncserép
Az épületek a mai legmodernebb technológiával, korszerű anyagok felhasználásával épülnek
Fűtésről hőszivattyús rendszer gondoskodik, padlófűtésre csatlakoztatva
A hűtést szintén a hőszivattyú szolgáltatja, fancoil-ok segítségével

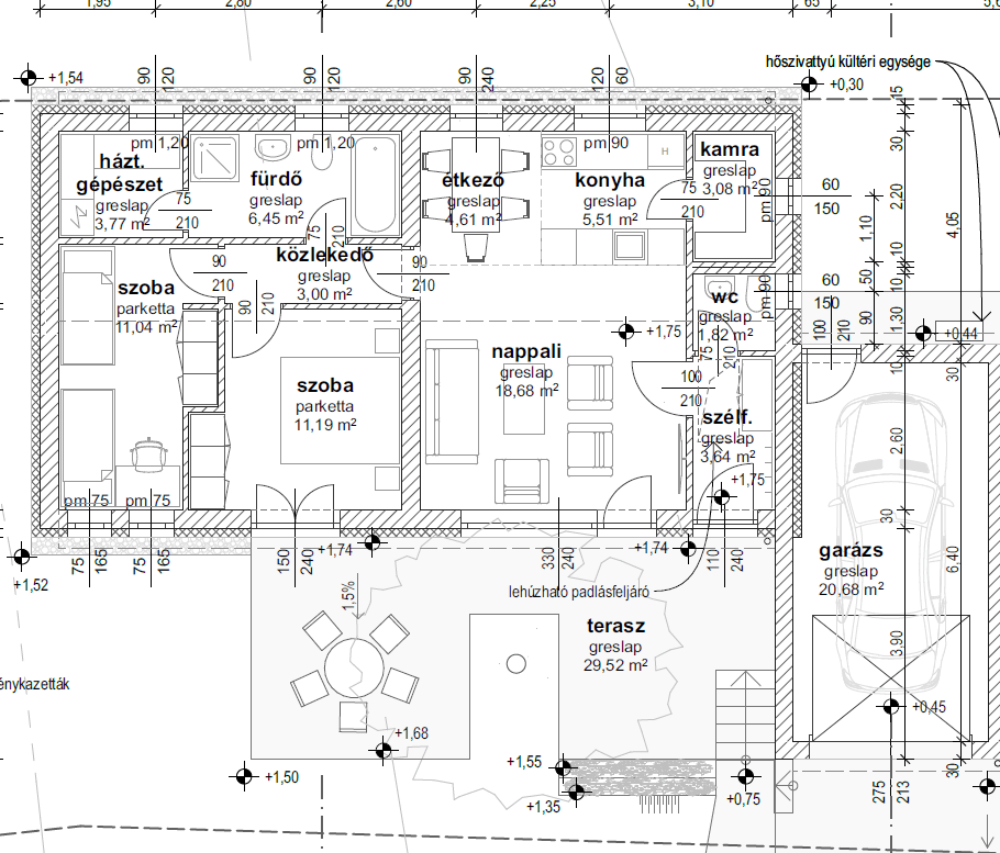
Helyiségek:

Előtér: 2.52 m2
WC: 1.68 m2
Kamra: 1.40 m2
Konyha-étkező: 12.59 m2
Nappali: 19.36 m2
Szoba: 11.04 m2
Szoba: 11.19 m2
Háztartási helyiség: 3.69 m2
Fürdő: 6.57 m2
Közlekedő: 3 m2
Összesen: 73.89 m2

+ Garázs: 20.68 m2
+ Terasz: 29.52 m2

A lakások kulcsrakész állapotban kerülnek átadásra.
A hálószobák parketta, a többi helyiség gres lap padlóburkolatot kapnak.
A belső nyílászárók, és burkolatok színei választható.
A vételár nem tartalmazza a konyhabútor beépítését.
Várható átadás 2026 ősz.
Összesen 6 lakóegység épül hasonló paraméterekkel.
Komoly érdeklődés esetén a teljes tervdokumentáció, és műszaki leírás biztosított.

A kivitelező cég nagy múlttal rendelkezik az építőipar területén, megbízható, kiváló minőségben épít.
Számos referenciája megtekinthető a környéken.

További információért, és személyes megtekintéssel kapcsolatban keressen bizalommal a megadott elérhetőségeken.
Előre egyeztetett időpontban szívesen megmutatom a teljes projektet!

Fekete Bence
BJ Ingatlan

Kapcsolati adatok

Fekete Bence

Fekete Bence

Vezető Tanácsadó

+36-30-338 2762

ertekesites@bj-ingatlan.hu

Érdeklődjön az ingatlanról, e-mailben!

Hasonló ingatlanok

Hívás