Iszkáz - Eladó Ház
112 m2
33.500.000 Ft
352228
Falusi CSOK és Otthon Start támogatásra alkalmas családi ház nagy telekkel Iszkázon
Leírás
Somló-hegy lábánál, Iszkázon kínálunk megvételre egy folyamatosan felújított, gazdálkodásra is kiválóan alkalmas családi házat!
Amit az ingatlanról tudni érdemes:
- 3755 nm-es telek számos gyümölcsfával és melléképülettel
- A lakóház hasznos alapterülete 112 nm
- Kő és tégla falazatú, cserépfedéses épület
- Több alternatív fűtési lehetőség: fatüzelésű kandalló, villanykazán radiátoros hőleadással, valamint 5,2 kW teljesítményű hűtő–fűtő klíma
- Melegvizet villanybojler biztosítja
Felújítások (2019-től):
- 3 helyiség kivételével műanyag nyílászárók
- Új villanyhálózat: 3 fázis (3×16A), ipari áram a garázsban és a nyári konyhában
- Nyári konyhában víz bevezetve
- Födémszigetelés: utcafronti szobák felett 25 cm, a ház többi részén 45 cm
Funkcionális elosztás:
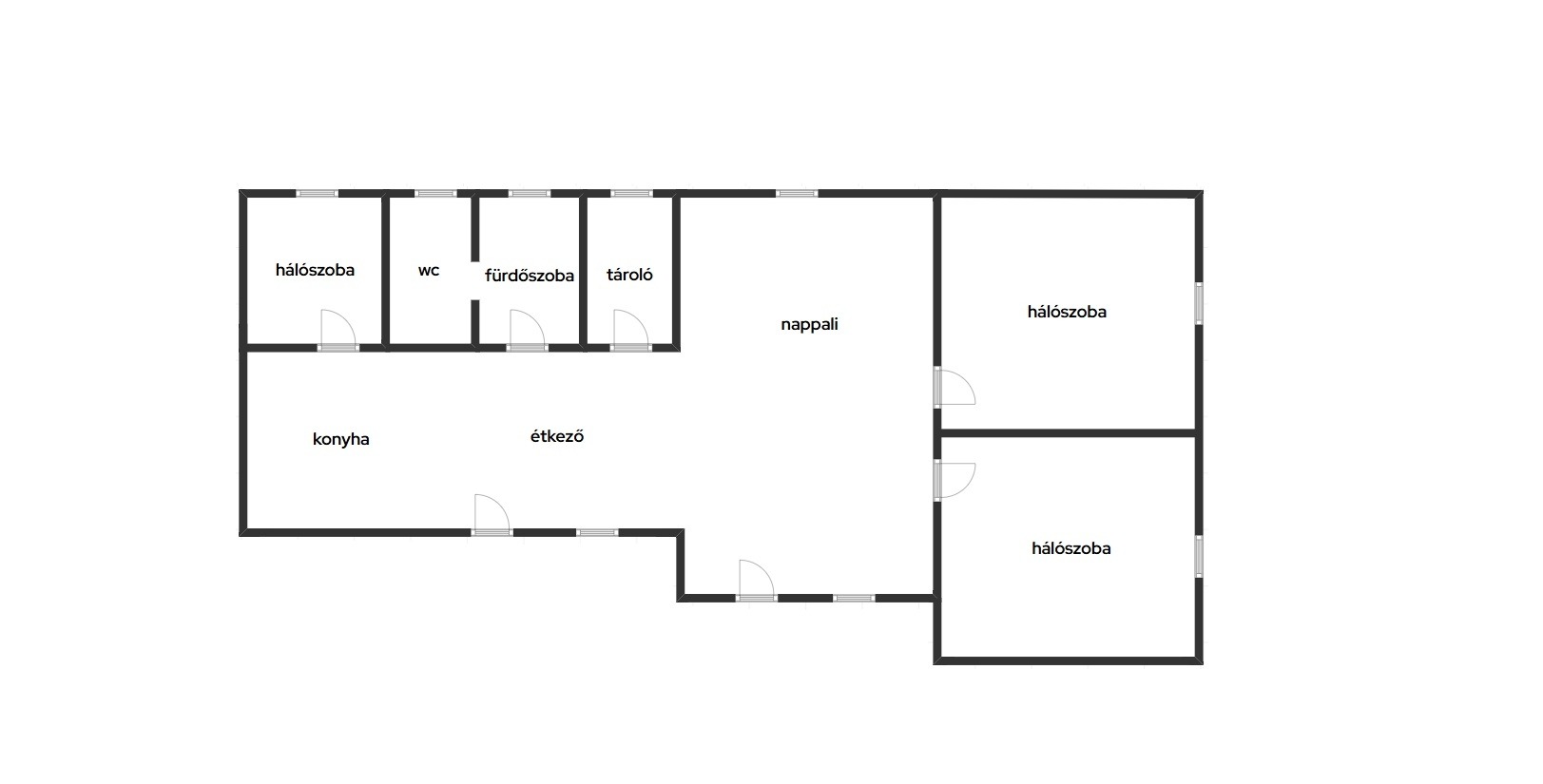
Fedett teraszról két bejárat vezet a tágas konyha–étkező–nappali térbe.
Innen nyílik 3 hálószoba, fürdőszoba és egy tároló (villanykazán helyisége)
Falusi CSOK és Otthon Start támogatás igénybe vehető!
Az ingatlan tehermentes.
Iszkáz a Somló-hegy lábánál fekvő, csendes, természetközeli település, amely nyugodt vidéki életet kínál távol a városi zajtól. A környező városok, mint például Ajka, Devecser, Sümeg, Tapolca és Pápa könnyen elérhetők, így a nyugalom és a jó megközelíthetőség egyszerre adott.
Amennyiben felkeltette érdeklődését, előre egyeztetett időpontban szívesen megmutatom! Keressen bizalommal!
Ispánné Sófalvi Eszter
BJ Ingatlan
Kapcsolati adatok
Érdeklődjön az ingatlanról, e-mailben!
Hasonló ingatlanok
Somlóvásárhely
Tágas telken, azonnal költözhető 3 szobás családi ház Somlóvásár...